Wildwood Condominiums - Exterior Envelope Reno.
Cape Elizabeth, ME
- Area: 122,350 s.f. (exterior siding)
 - Construction Cost: $2.4 million
 
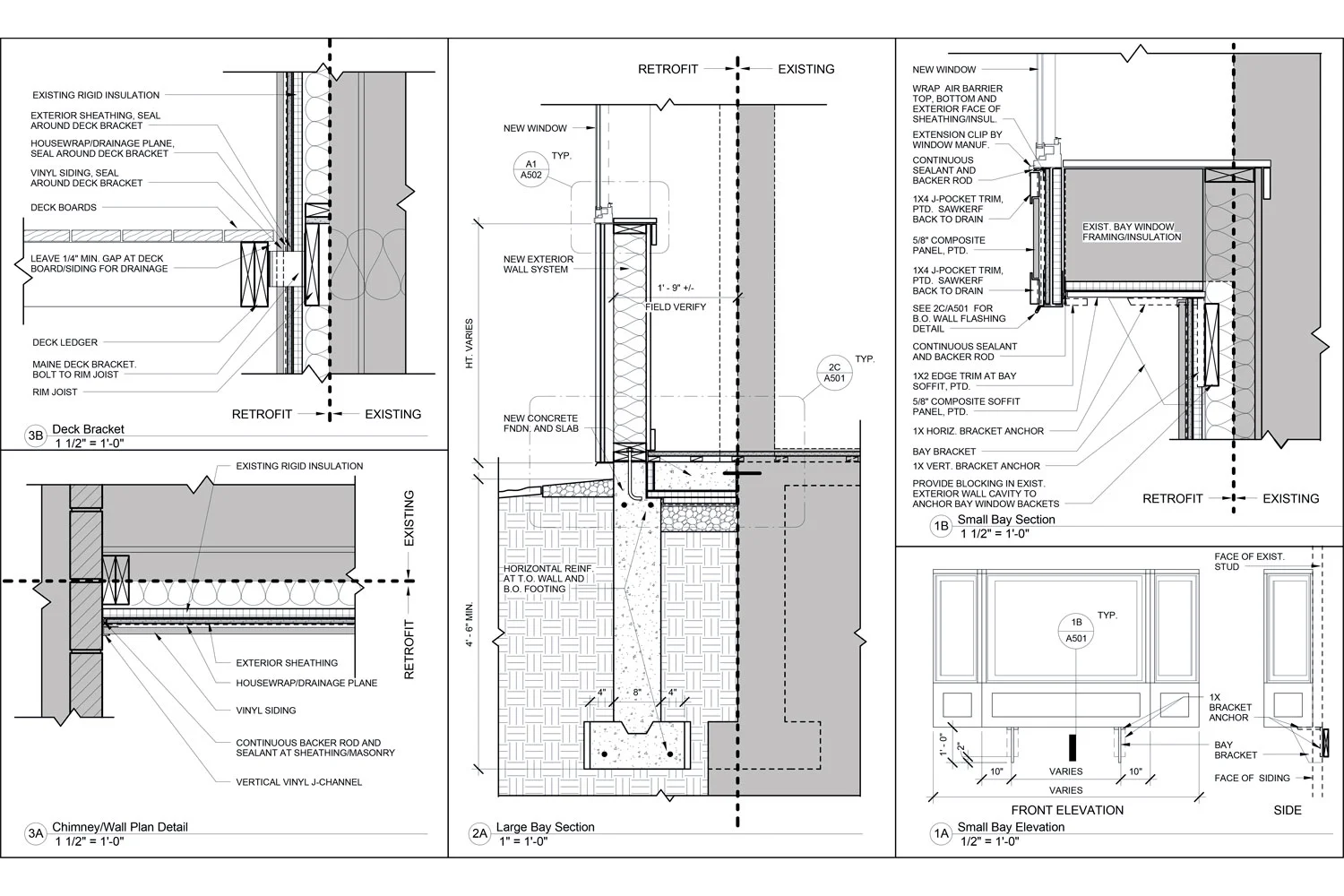
Project Description: This project consisted of an exterior envelope re-cladding for a 60-unit condominium development. It began with extensive site investigation and close work with board members of the homeowners association. Issues of material deterioration, mold, rot, and infestation had to first be investigated then solved through a thoughtful execution of a new exterior wall assembly design. Windows and sliding doors were replaced while several layers of the exterior wall were reclad with materials able to resisting moisture penetration as well as create a more durable maintenance-free building shell.
Project Responsibilities:
- Site conditions assessment
 - Wall assembly design
 - Client contact and presentations
 - BIM management & project documents
 - Rendering
 - Construction Administration
 
Work performed at PDT Architects.
